John Hunn House Architectural Drawings 1935

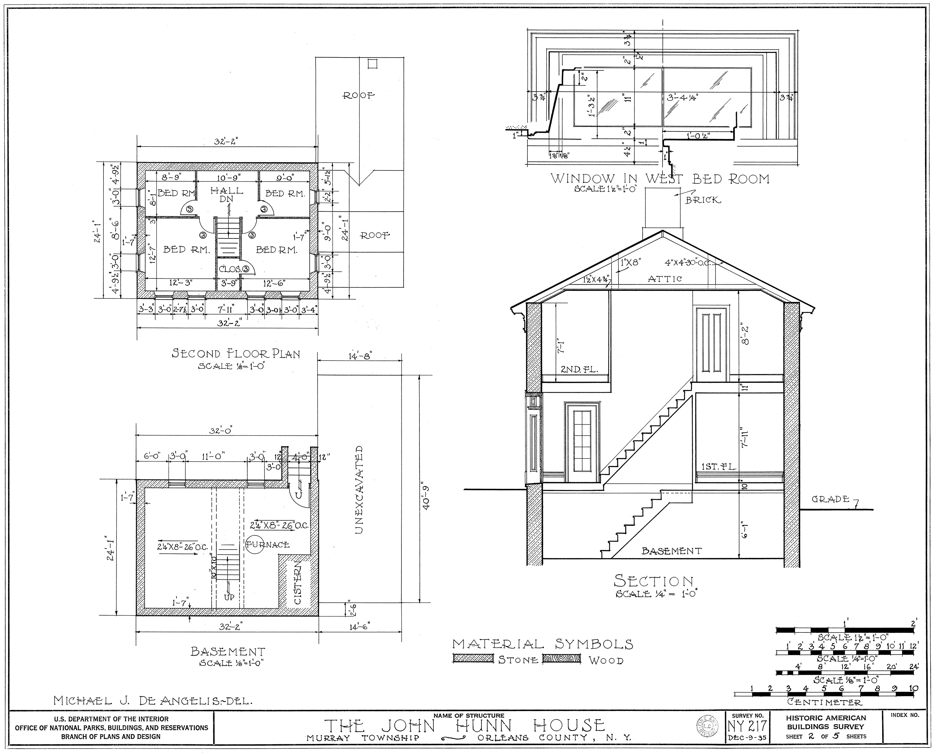
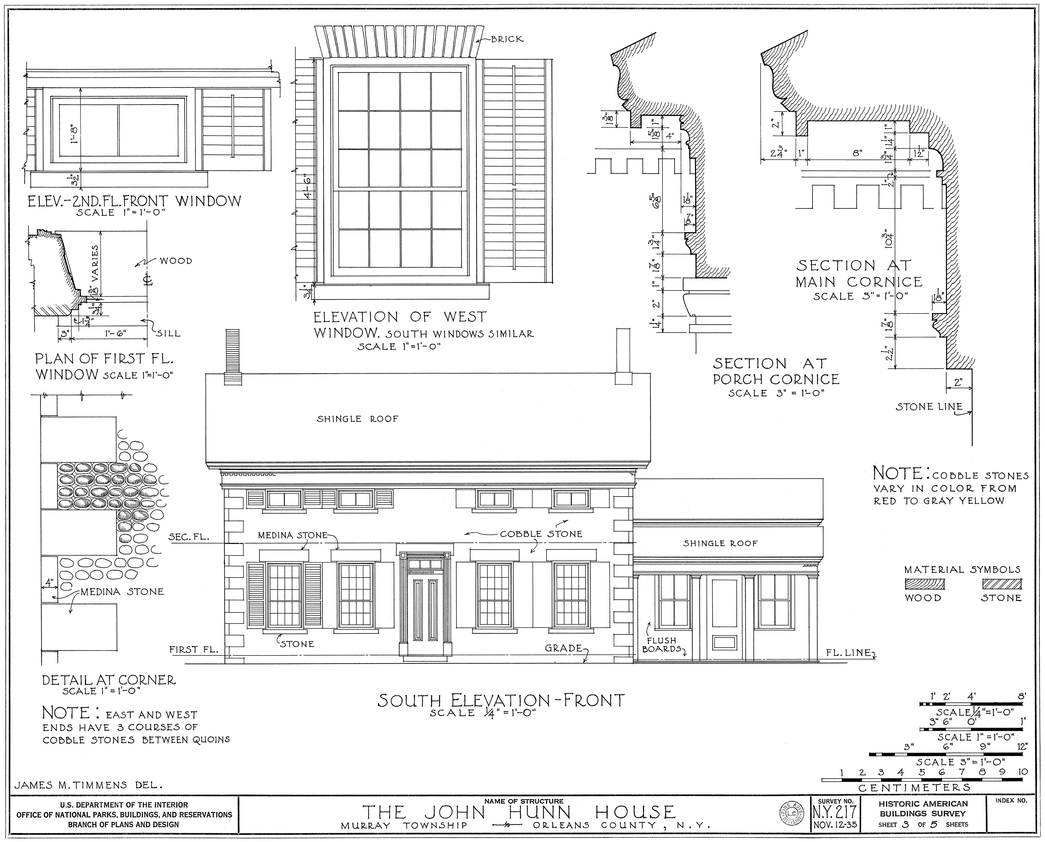
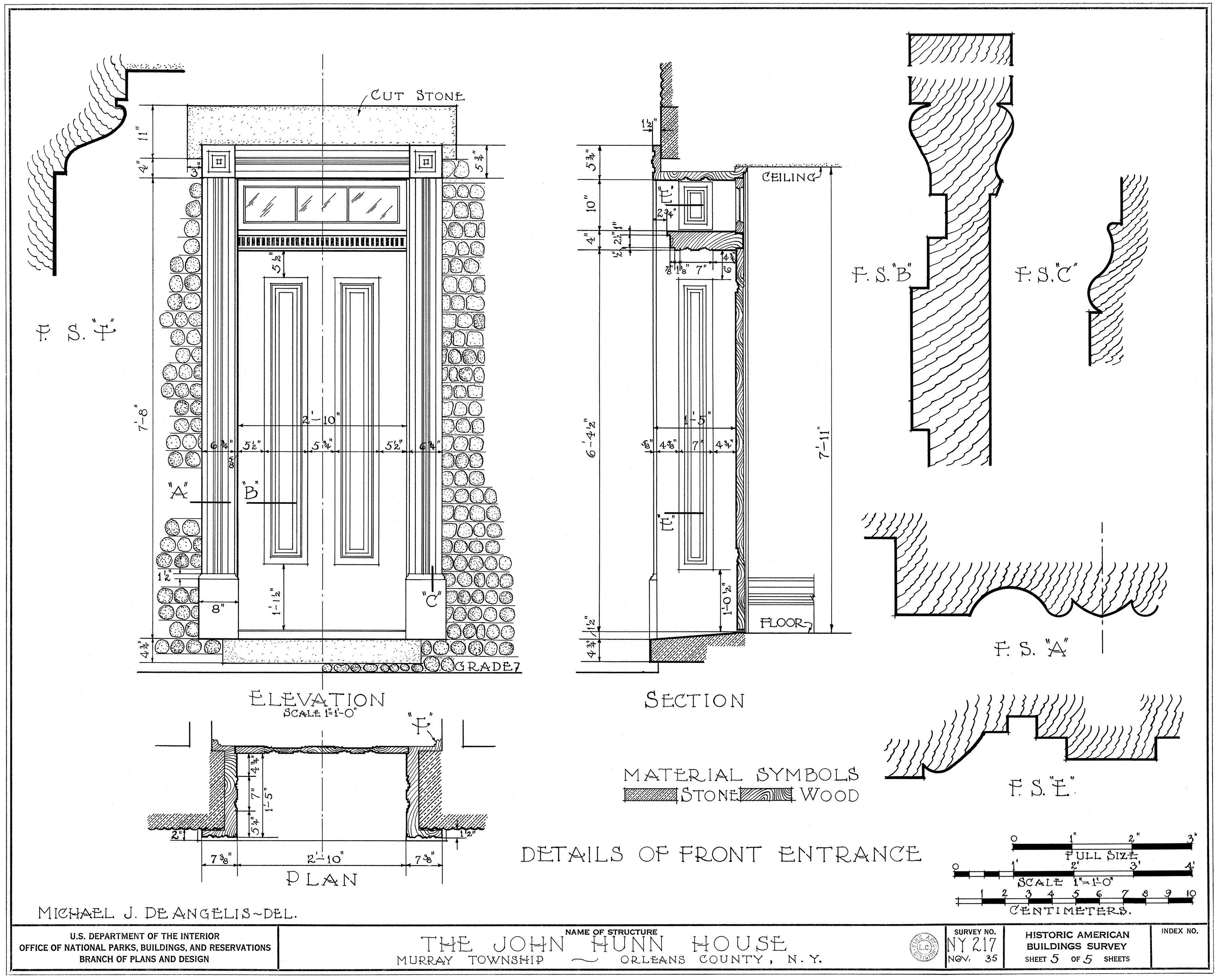
Editor's Note: The John Hunn House (Mud-7 Rosie) structure is one of the few authentic cobblestone structures that has available a complete set of architectural drawings. Dated late 1935, these John Hunn House drawings were part of the "Historic American Buildings Survey" project, available at the Library of Congress.

master-pnp-habshaer-ny-ny0600-ny0636-sheet-00000a
master-pnp-habshaer-ny-ny0600-ny0636-sheet-00000a.jpg ¹
master-pnp-habshaer-ny-ny0600-ny0636-sheet-00001a
master-pnp-habshaer-ny-ny0600-ny0636-sheet-00001a.jpg ¹
master-pnp-habshaer-ny-ny0600-ny0636-sheet-00002a
master-pnp-habshaer-ny-ny0600-ny0636-sheet-000002a.jpg ¹
master-pnp-habshaer-ny-ny0600-ny0636-sheet-00003a
master-pnp-habshaer-ny-ny0600-ny0636-sheet-00003a.jpg ¹
master-pnp-habshaer-ny-ny0600-ny0636-sheet-00004a
master-pnp-habshaer-ny-ny0600-ny0636-sheet-00004a.jpg ¹
master-pnp-habshaer-ny-ny0600-ny0636-sheet-00005a
master-pnp-habshaer-ny-ny0600-ny0636-sheet-00005a.jpg ¹

¹ Images courtesy Library of Congress.